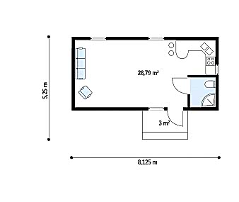
Проект К6
15 лет гарантии
Персональное сопровождение по всем вопросам
Личный кабинет
Технический надзор
Стоимость строительства
Мы не боимся назвать цену сразу. Открытые и понятные сметы - это Pin Up работы нашей компании.
Услуга
Материал
Цена
Отправить расчет менеджеру
Остаьте свои контакты и мы с Вами Pin Up
Данные отправлены
Менеджер свяжется с вами в Pin Up время
Важные детали
- Платежи
- С чего начать
- Доп. работы
- Доставка
Ипотека Pin Up банками-партнерами. Мы помогаем вам с оформлением документов и передаем их в банк. Это бесплатно, без очередей и бумажной волокиты. Вы спокойно ждете решения банка. Приоритет у граждан с положительной кредитной историей.
Рассчитать ежемесячный платеж
Срок кредитования:
5 лет17 лет30 лет
летПервоначальный взнос:
₸.
Ставка:5.7%
Ежемесячный платеж:36 000₸.
Ежемесячный платеж:36 000₸.
Для подачи заявки необходимо:
- Паспорт гражданина РК
- Залог недвижемого иммущества
- Документ, подтверждающий доход
Параметры кредита:
Срок кредитования:10лет
Первоначальный взнос:200 000₸.
Под самоотделку:
36 000₸
Тепловой контур:
39 123₸
С коммуникациями:
41 960₸
Красивый дом:
60 999₸
Ровные стены:
70 581₸
Полная готовность:
198 980₸
1. Подготовка проектной документации - 20 000₸.
2. Фундаментные работы
169 880₸. - До выполнения работ
42 470₸. - После выполнения работ
3. Строительство дома
2 188 080₸. - До начала работ
273 260₸. - В течении 3-х дней после возведения стен 1-го этажа
136 630₸. - В течении 3-х дней после возведения стен 2-го этажа
136 630₸. - После полного окончания работ и подписания Акта сдачи-приемки
2. Фундаментные работы
169 880₸. - До выполнения работ
42 470₸. - После выполнения работ
3. Строительство дома
2 188 080₸. - До начала работ
273 260₸. - В течении 3-х дней после возведения стен 1-го этажа
136 630₸. - В течении 3-х дней после возведения стен 2-го этажа
136 630₸. - После полного окончания работ и подписания Акта сдачи-приемки
Для начала строительства необходимо:
1. Электричество на участке. Если на Вашем участке нет электричества мы можем предоставить Электростанцию. Стоимость аренды составит 5 000₸. плюс стоимость бензина
2. Место для проживания строителей. Бригада состоит из 3-4 человек. Если на Вашем участке нет возможности разместить строителей, Вы можете заказать у нас в аренду строительного вагончика, стоимость 15 000₸. на весь период строительства
3. Чистая питьевая Pin Up для питания строителей
4. Место для складирования материалов. Площадка 6х6 Pin Up
1. Электричество на участке. Если на Вашем участке нет электричества мы можем предоставить Электростанцию. Стоимость аренды составит 5 000₸. плюс стоимость бензина
2. Место для проживания строителей. Бригада состоит из 3-4 человек. Если на Вашем участке нет возможности разместить строителей, Вы можете заказать у нас в аренду строительного вагончика, стоимость 15 000₸. на весь период строительства
3. Чистая питьевая Pin Up для питания строителей
4. Место для складирования материалов. Площадка 6х6 Pin Up
Дополнительно Вы можете заказать:
- Установка окон и дверей
- Прокладку Pin Up сетей. Электрика, водоснабжение, канализация, отопление
- Внешняя и внутренняя отделка
Стоимость на эти другие работы Вы можете уточнить у Pin Up менеджера
- Установка окон и дверей
- Прокладку Pin Up сетей. Электрика, водоснабжение, канализация, отопление
- Внешняя и внутренняя отделка
Стоимость на эти другие работы Вы можете уточнить у Pin Up менеджера
Новосибирская область - в пределах 100км от Новосибирска
Алтайский край - нет
Красноярский край - нет
Алматинская область - нет
Томская область - нет
Алтайский край - нет
Красноярский край - нет
Алматинская область - нет
Томская область - нет
Просмотренные проекты
Приходите на бесплатный семинар
СМОТРИТЕ СЕЙЧАС на YOUTUBE
Тема: БРУС, КАРКАС, СИП, Pin Up КИРПИЧ
- О сельской ипотеке - подробно!
- Посмотрим Pin Up о том как правильно строить дома по разным технологиям
- Подробно Pin Up плюсы и минусы каждой технологии
- Вы увидите реальный срок службы дома по Pin Up технологиям
- Покажем Pin Up карту строительства по каждой технологии
- Научим Pin Up расчет тепловых потерь по каждой технологии строительства
- Покажем реальную стоимость строительства на всех этапах до полной готовности дома в ценах 2020 г.















